五、实例选录
这一章中收集了六个集装箱建筑的实例,其中四例曾经在“组合变化”一章中出现过。相较前面几个章节中抽象图解式的示意,这里提供总图、平面、剖面和立面等更为详细的测绘资料,同时就各建筑的类型、使用、基本特点等作简略的说明。本章的着眼点并不在于探讨设计原则和形式类型,而在于集装箱建筑实例本身。
1. 青木建筑工地宿舍(中港道,上环,港岛,档案号039)
此为香港国际机场机场快线港岛站的工地宿舍,共有两座独立的建筑组成,每座由两行各六个上下整齐叠加的集装箱平行相间排列,两行之间略有错位,在顶部有钢条以规律的间距相连,在中层是钢格栅平台,有楼梯通达。工人利用顶部之钢条以及中层之钢格栅来晾晒衣物。每个集装箱为单独的宿舍,双层通铺顺长排列。所有集装箱单元均装有窗式空调。



2. 钟泰木材公司(坪輋路,打鼓岭,新界,档案号056)
这是一个非常简单的小型公司办公室。上层是两个短集装箱(40ft)合并的办公空间,下层是半开敞的车库。它的独特之处在于屋面是由独立的柱子及后面的建筑侧墙来支撑,其优点何在未明。集装箱本身是以桁架支撑,荷载传至两端,这样可以减少中间柱子的数量。



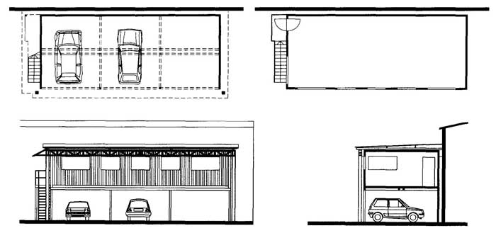
3. Fei Hung 汽车零配件公司(锦田路,锦田,新界,档案号057)
这是一间位于新界的汽车零配件修配公司,上层是办公室,下层是车库和修配间。三个集装箱呈曲尺型排列,用钢结构支撑,其中的两个合并为大空间。两组之间有一个空隙,形成一个储藏或厕所的小空间。建筑的两边各有一个楼梯通达上层,以一贯通的挑廊相连。一个大的铁皮屋面遮盖了整个建筑。



相关内容目录:
香港集装箱建筑(1) 香港集装箱建筑(2) 香港集装箱建筑(3) 香港集装箱建筑(4) 香港集装箱建筑(5) 香港集装箱建筑(6) 香港集装箱建筑(7) 香港集装箱建筑(8) 香港集装箱建筑(9) 香港集装箱建筑(10) 香港集装箱建筑(11) 香港集装箱建筑(12) 香港集装箱建筑(13) 香港集装箱建筑(15) 香港集装箱建筑(16) 香港集装箱建筑(17) 香港集装箱建筑(18) 香港集装箱建筑(19) 香港集装箱建筑(20) 香港集装箱建筑(21) 香港集装箱建筑(22) 香港集装箱建筑(23) 香港集装箱建筑(24) 香港集装箱建筑(完)
Copyright © 2025 JiZhuangFang.com, All Rights Reserved