
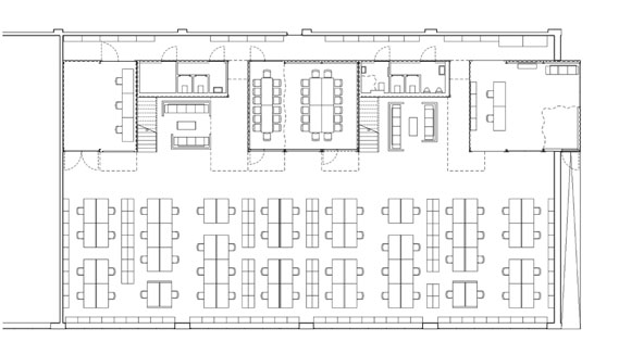
集装箱办公室的一层平面图

集装箱办公室的功能空间构成

集装箱办公室的功能空间构成
1.头脑风暴室 2.会议室 3.非正式空间 4.餐厅 5.休息室 6.模型工作室
7.团队工作室 8.非正式会议室 9.非正式会议休息室 10.会议/电视会议室 11.资料室 12.等候室 13.入口
Bayside Marina 集装箱酒店
设计:Yasutaka Yoshimura 建筑事务所
地点:日本 横滨
用途:酒店单元
竣工时间:2009年
集装箱数量:62
位于码头和附近公园之间的双层集装箱酒店,其平面构成动感十足,并忠实地遵循了日本传统的设计美学。
Bayside Marina 集装箱酒店是一个海滨别墅酒店。它在两个方面区别于本书中的其他集装箱建筑项目。首先,它不是由集装箱建造的单一结构,而是由一系列临时建筑组成的动态风景构成。其次,它不是单纯由集装箱建造的,而是由12米(40英尺)标准大小的海运集装箱制成的模块化单元建造而成的。
该集装箱建筑群由31个独立单元(平面)的、有双层高度(复式)的集装箱公寓组成,餐厅、入口和服务空间都被塞进这一由相同模块组成的体系中。每一单元朝向不同,从这里可以看到附近码头停泊着游艇的海上风光以及附近公园的远景。单元之间的实体分隔保证了足够的隔声效果和私密性,同时营造了一种动态的景观。建材上的节约,精致的细节,柔和的色彩以及极简主义的室内外装饰处处体现了日本设计风格。传统的日本美学和虚空的道教哲学认为空间的真正美感在于屋顶和墙壁之间的留白,室内应适度装饰而不是被物品所制约。集装箱的短边墙为整面玻璃,这使得室内显得十分明亮。
预制单元在泰国制造,随后运输到日本。由于希望通过集装箱货轮直接运输,这些预制单元采用了相同的标准集装箱尺寸和连接五金件。这些单元在泰国组装完毕,然后运到日本的预定地点。到达目的地后,这些单元可以很容易地通过螺栓固定到位并与市政设备相连,是一种快捷经济的现场安装方式。

Bayside Marina 集装箱酒店的整体外观
相关内容目录:
集装箱建筑设计指南及30个案例研究(1) 集装箱建筑设计指南及30个案例研究(2) 集装箱建筑设计指南及30个案例研究(3) 集装箱建筑设计指南及30个案例研究(4) 集装箱建筑设计指南及30个案例研究(5) 集装箱建筑设计指南及30个案例研究(6) 集装箱建筑设计指南及30个案例研究(7) 集装箱建筑设计指南及30个案例研究(8) 集装箱建筑设计指南及30个案例研究(9) 集装箱建筑设计指南及30个案例研究(10) 集装箱建筑设计指南及30个案例研究(11) 集装箱建筑设计指南及30个案例研究(12) 集装箱建筑设计指南及30个案例研究(13) 集装箱建筑设计指南及30个案例研究(14) 集装箱建筑设计指南及30个案例研究(15) 集装箱建筑设计指南及30个案例研究(16) 集装箱建筑设计指南及30个案例研究(17) 集装箱建筑设计指南及30个案例研究(18) 集装箱建筑设计指南及30个案例研究(19) 集装箱建筑设计指南及30个案例研究(20) 集装箱建筑设计指南及30个案例研究(21) 集装箱建筑设计指南及30个案例研究(22) 集装箱建筑设计指南及30个案例研究(23) 集装箱建筑设计指南及30个案例研究(24) 集装箱建筑设计指南及30个案例研究(25) 集装箱建筑设计指南及30个案例研究(26) 集装箱建筑设计指南及30个案例研究(27) 集装箱建筑设计指南及30个案例研究(28) 集装箱建筑设计指南及30个案例研究(29) 集装箱建筑设计指南及30个案例研究(30) 集装箱建筑设计指南及30个案例研究(31) 集装箱建筑设计指南及30个案例研究(32) 集装箱建筑设计指南及30个案例研究(33) 集装箱建筑设计指南及30个案例研究(35) 集装箱建筑设计指南及30个案例研究(36) 集装箱建筑设计指南及30个案例研究(37) 集装箱建筑设计指南及30个案例研究(38) 集装箱建筑设计指南及30个案例研究(39) 集装箱建筑设计指南及30个案例研究(40) 集装箱建筑设计指南及30个案例研究(41) 集装箱建筑设计指南及30个案例研究(42) 集装箱建筑设计指南及30个案例研究(43) 集装箱建筑设计指南及30个案例研究(44) 集装箱建筑设计指南及30个案例研究(45) 集装箱建筑设计指南及30个案例研究(46) 集装箱建筑设计指南及30个案例研究(47) 集装箱建筑设计指南及30个案例研究(48) 集装箱建筑设计指南及30个案例研究(49) 集装箱建筑设计指南及30个案例研究(50) 集装箱建筑设计指南及30个案例研究(51) 集装箱建筑设计指南及30个案例研究(52) 集装箱建筑设计指南及30个案例研究(53) 集装箱建筑设计指南及30个案例研究(54) 集装箱建筑设计指南及30个案例研究(55) 集装箱建筑设计指南及30个案例研究(56) 集装箱建筑设计指南及30个案例研究(57) 集装箱建筑设计指南及30个案例研究(58) 集装箱建筑设计指南及30个案例研究(59) 集装箱建筑设计指南及30个案例研究(60) 集装箱建筑设计指南及30个案例研究(61) 集装箱建筑设计指南及30个案例研究(62) 集装箱建筑设计指南及30个案例研究(63) 集装箱建筑设计指南及30个案例研究(64) 集装箱建筑设计指南及30个案例研究(65) 集装箱建筑设计指南及30个案例研究(66) 集装箱建筑设计指南及30个案例研究(67) 集装箱建筑设计指南及30个案例研究(68) 集装箱建筑设计指南及30个案例研究(69) 集装箱建筑设计指南及30个案例研究(70) 集装箱建筑设计指南及30个案例研究(71) 集装箱建筑设计指南及30个案例研究(72) 集装箱建筑设计指南及30个案例研究(73) 集装箱建筑设计指南及30个案例研究(74) 集装箱建筑设计指南及30个案例研究(75) 集装箱建筑设计指南及30个案例研究(76) 集装箱建筑设计指南及30个案例研究(77) 集装箱建筑设计指南及30个案例研究(78) 集装箱建筑设计指南及30个案例研究(79) 集装箱建筑设计指南及30个案例研究(80) 集装箱建筑设计指南及30个案例研究(81) 集装箱建筑设计指南及30个案例研究(82) 集装箱建筑设计指南及30个案例研究(83) 集装箱建筑设计指南及30个案例研究(84) 集装箱建筑设计指南及30个案例研究(85) 集装箱建筑设计指南及30个案例研究(86) 集装箱建筑设计指南及30个案例研究(87) 集装箱建筑设计指南及30个案例研究(88) 集装箱建筑设计指南及30个案例研究(89) 集装箱建筑设计指南及30个案例研究(90) 集装箱建筑设计指南及30个案例研究(91) 集装箱建筑设计指南及30个案例研究(92) 集装箱建筑设计指南及30个案例研究(93) 集装箱建筑设计指南及30个案例研究(94) 集装箱建筑设计指南及30个案例研究(完)
Copyright © 2025 JiZhuangFang.com, All Rights Reserved