6.3.2 通过竖向交通核联系箱体
通过竖向交通核联系箱体是将集装箱空间(包括单箱体空间或多箱体融合空间)围绕着楼梯、电梯等垂直交通体来布置。由于楼梯的周界较短,每个竖向交通核心所服务的房间单元有限,因此,这种方式在每层平面所联系的空间相对较少。但通过这种组织方式,能够使平面布置更为紧凑,可以减少各套房间所受的干扰,提高房间的私密性。通过竖向交通核联系箱体的方式比较适合对空间的私密性要求较高的住宅类建筑。
选用以竖向交通为核心的这种箱体布局方式,还应当在设计中特别注重跨越楼层的空间序列,通过重点处理楼层平台以及休息平台等处的空间形式,来保持空间的连续性。同时,为丰富建筑的外观变化,可以选用不同形式的竖向交通构件。
Cité A Docks 学生宿舍
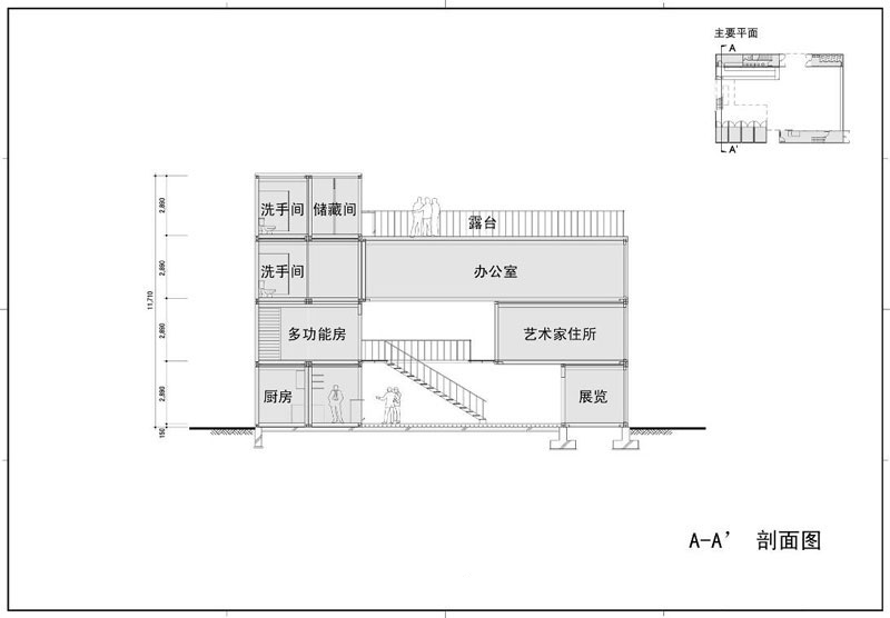
法国勒阿弗尔的 Cité A Docks 学生宿舍建成于2010年,是由建筑师 Cattani Architects 设计的。建筑共4层,能提供100套公寓,每个宿舍单元均为一个未经拓展的40英尺集装箱空间,房间面积约为24平方米,配备独立洗手间与厨房。集装箱的组合布局以多部楼梯为核心,形成一个个竖向交通组团,大部分楼梯在每层平面上服务两个集装房间。这种联系方式减少了每户使用者之间的干扰,此项目解决了学生宿舍中的一些常见问题,例如拥挤、吵杂、缺乏私密性等。
建筑师利用楼梯间将整栋建筑的体量打碎,以两个集装箱为基本组团划分成多个体块,立面上楼梯间的“虚”与集装箱的“实”形成了强烈的对比与节奏感。通透的楼梯间也改善了建筑的通风效果,使气流能穿过建筑进入庭院。楼梯间的休息平台作为开放空间向外出挑,增加了立面的细节,同时也体现了建筑师对使用者的交往需求的关注(图 6-15)。

(a)

(b)
图 6-15 法国 Cité ADocks 学生宿舍通过楼梯来组织箱体布局
MDU 建造体系
由 LOT-EK 设计的可移动居住单元(Modular Dwelling Unit,简称 MDU)是针对那些经常变化居住地点的人们而研发的具有高度的灵活性、可移动性和可扩展性的居住模块单元,同时,MDU 又是一种针对大规模集装箱组合而研发的建造体系。每个 MDU 就是大系统中的一个基本构成单位,这种 MDU 单元既可以作为独立的单箱体建筑使用,也可以搭配特制的钢框架结构组成集合住宅。而 MDU 的组合就是围绕竖向交通核心而进行的。
MDU 建造体系的每个交通核心由一部电梯与一部楼梯组成,每个交通核心在每个水平层上服务两个集装箱单元。每层交通核的面积很小,与集装箱尽端的入口直接连接,通过提高交通面积的利用率减少了组成交通核心所需的构件。电线、通讯电缆、给排水管等设备也通过垂直交通体解决(图 6-16、6-17)。

图 6-16 MDU 建造体系外观透视图

图 6-17 MDU 建造体系立面图
6.3.3 通过中心大空间控制箱体组合
通过中心大空间控制箱体组合的做法非常普遍,主要原因是这种布方式能够完全突破集装箱箱体内部尺寸的限制,获得巨大的室内空间。在这种组合策略中,集装箱可以被看作一种围合空间的基本单位,通过将这些基本单位组合起来,可以组成一种围护结构,作为基本单位的箱体对于其所形成的围护结构来说就类似于砖对于砖墙的关系。但是“集装箱墙”与常见的砖或砌块所砌成的实体墙又有所不同,因为集装箱本身就具有一定容量的内部空间,所以“集装箱墙”不但具有围护功能,也具有空间容量,可以承担一部分使用功能。因此,“集装箱墙”是一种具有多重功能的构件,它既是支撑结构,又是使用空间。由中心大空间控制箱体组合的策略比较适合办公、商业、教育、文化、娱乐等对空间体积需求较大的功能,甚至可以满足一些简易的体育馆、剧场或会展中心等大型公建的要求。
使用这种布局策略进行设计时,应当注意外围箱体与其所围合的中心空间的联系与划分,根据功能与空间的需要决定空间的隔断与联通处理。中心空间与外围空间的联系方式可以有许多种,例如设置门、窗或者半通透的格栅,也可根据需要将整个侧墙的波形钢板移除,让中部空间渗透到“集装箱墙”中去。
Platoon 艺术馆
位于韩国首尔的 Platoon 艺术馆是一座使用28个40英尺集装箱建造而成的综合艺术空间,其集装箱的组合策略采用了通过中心大空间控制箱体布局的方式。这个项目最大的亮点在于它使用了集装箱作为主体结构创造了巨大的室内空间,四周的集装箱组成支撑与围合结构,就连屋顶的大跨度结构都由集装箱建造,没有使用附加的梁或桁架等大跨度构件,集装箱在这个项目中承担了绝大部分的荷载(图 6-18)。
四周起支撑作用的集装箱同时也提供了使用空间,屋顶作为大跨度“桁架”的集装箱同时也作为顶层空间而存在。建筑师通过调整周围集装箱的数量、位置以及相互搭接方式来塑造中部大空间的形状与尺度,使空间产生了丰富的变化与层次。中部大空间与周围集装箱空间之间的联系变化多端,时而联通,时而隔断,产生了非常有趣的对话。
这个集装箱艺术空间由 Graft Architects 设计,共4层,总建筑面积415m²,中部核心大空间的面积为272m²,整栋建筑的功能包括展厅、酒吧与餐厅、活动大厅、艺术家创作室、图书馆、办公室、工艺作坊、屋顶酒吧等。建筑师通过变幻箱体的组合方式,还创造了一些屋顶平台与开放空间。Platoon 艺术馆的设计在箱体的组合方式上突破了前人的尝试,内部空间层次丰富,联系紧凑,且极具动感,充分演绎了箱体组合所产生的无限可能性。





图 6-18 Platoon 艺术馆
相关内容目录:
当代集装箱建筑模块化设计策略研究(1) 当代集装箱建筑模块化设计策略研究(2) 当代集装箱建筑模块化设计策略研究(3) 当代集装箱建筑模块化设计策略研究(4) 当代集装箱建筑模块化设计策略研究(5) 当代集装箱建筑模块化设计策略研究(6) 当代集装箱建筑模块化设计策略研究(7) 当代集装箱建筑模块化设计策略研究(8) 当代集装箱建筑模块化设计策略研究(9) 当代集装箱建筑模块化设计策略研究(10) 当代集装箱建筑模块化设计策略研究(11) 当代集装箱建筑模块化设计策略研究(12) 当代集装箱建筑模块化设计策略研究(13) 当代集装箱建筑模块化设计策略研究(14) 当代集装箱建筑模块化设计策略研究(15) 当代集装箱建筑模块化设计策略研究(16) 当代集装箱建筑模块化设计策略研究(17) 当代集装箱建筑模块化设计策略研究(18) 当代集装箱建筑模块化设计策略研究(19) 当代集装箱建筑模块化设计策略研究(20) 当代集装箱建筑模块化设计策略研究(22) 当代集装箱建筑模块化设计策略研究(23) 当代集装箱建筑模块化设计策略研究(24) 当代集装箱建筑模块化设计策略研究(25) 当代集装箱建筑模块化设计策略研究(26) 当代集装箱建筑模块化设计策略研究(27) 当代集装箱建筑模块化设计策略研究(28) 当代集装箱建筑模块化设计策略研究(完)
Copyright © 2025 JiZhuangFang.com, All Rights Reserved